Upgrade to Pro — share decks privately, control downloads, hide ads and more …

Пример проекта из блоков и кирпича

Avatar for shuralev shuralev
August 23, 2018

Пример проекта из блоков и кирпича

Avatar for shuralev

shuralev

August 23, 2018
Tweet

Other Decks in Design

Transcript

  1. Изм. Кол.уч. Лист №Док. Подп. Дата ГИП Разраб. Жилой дом

    Общие данные. Стадия Лист Листов П 1 Ведомость основных комплектов рабочих чертежей. Ведомость основных комплектов рабочих чертежей. Обозначение Наименование Примечанение АР Архитектурные решения. Лист 1 Общие данные. Лист 2 Цветные фасады. Лист 3 Фасад 1-7. Фасад А-Ж. Лист 4 Фасад 7-1. Фасад Ж-А. Лист 5 Лист 6 Лист 7 План первого этажа. Лист 9 План второго этажа. Лист 10 Разрез 1-1. Разрез 2-2. Лист 11 Лист 12 ОБЩИЕ УКАЗАНИЯ: 1.За относительную отм.0,000 принят уровень чистого пола 1 -го этажа жилого помещения. 2.Проект разработан для следующих условий на участке для строительства: - рельеф участка ровный; - основание фундамента здания сложено непучинистыми грунтами с несущей способностью не менее 2 кгс/см2, уровень грунтовых вод расположен ниже подошвы фундамента; - инженерные сети только внутридомовые, без подключения к сетям. 3.Проект разработан для следующих климатических условий: расчетная температура наружного воздуха - 29º, ветровой напор - 23кг/м2, расчетное значение веса снегового покрова - 240кг/м2, сейсмичность участка - до 6 баллов. 4.Степень огнестойкости здания - V. 5.Данный проект жилого дома должен быть привязан к конкретным геологическим условиям площадки строительства. Ведомость ссылочных и прилагаемых документов. Обозначение Наименование Примечанение СНиП 31-02-2001 Дома жилые одноквартирные СНиП 30-02-97 Планировка и застройка территорий садаводческих товариществ граждан СНиП 30-102-99 Планировка и застройка территорий малоэтажного жилищного строительства ГОСТ 5781-82* Сталь горячекатанная для армирования ж/б конструкций. Технические условия. Серия 2.160-9 вып.1 Узлы деревянных крыш. Основные технико- экономические показатели. Наименование Кол-во Площадь участка, м2 - Площадь застройки дома,м2 183 Степень огнестойкости дома V Этажность 2 Строительный объем, м3 1520 Общая площадь здания,м2 261,25 Жилая площадь здания,м2 117,2 Деревянные конструкции СНиП II- 25 - 80 ВСН 29 - 85 Проектирование мелкозаглубленного фундамента малоэтажных сельских зданий на пучинистых грунтах. Лист 8 ГОСТ 24454-80* Пиломатериалы хвойных пород. Размеры ГОСТ 8486-86* Пиломатериалы хвойных пород. Технические условия ГОСТ 21520-89 Блоки из ячеистых бетонов стеновые мелкие.Технические условия. ГОСТ 5781-82* Сталь горячекатанная для армирования ж/б конструкций. Технические условия. Сетки сварные для железобетонных конструкций. Технические условия. ГОСТ 8478-81 ГОСТ 6727-80* Проволока из низкоуглеродистой стали холоднотянутая для армирования ж/б конструкций. Технические условия. ГП Схема привязки дома на участке 1:200 Лист 13 Лист 14 Лист 15 План стропильной системы. План перекрытий +5,800. План кровли. Узлы стропильной системы. План фундамента. План перекрытий +2,800. 3D виды стропильной системы. Конструкция утепления наружных стен.Теплотехнический расчет.
  2. Изм. Кол.уч. Лист №Док. Подп. Дата ГИП Разраб. Жилой дом

    Цветные фасады. Стадия Лист Листов П 2
  3. +5,800 +9,545 +7,520 +1,900 +0,900 +2,400 +3,900 +5,400 -0,100 +5,400

    -0,950 +2,800 700 650 3 500 1 900 +3,500 +5,400 +0,900 +2,400 +9,550 +8,900 +10,050 +7,380 13 500 -0,100 +2,400 +5,800 +0,900 +2,400 +3,900 +5,400 +9,545 +7,520 -0,950 +10,050 14 400 Изм. Кол.уч. Лист №Док. Подп. Дата ГИП Разраб. Жилой дом Фасад 1-7. Фасад А-Ж. Стадия Лист Листов П 3 7 1 Ж А Фасад 1-7. Фасад А-Ж.
  4. -0,100 +0,900 +2,400 +3,900 +5,400 +5,800 +8,000 +9,545 +2,400 +3,890

    -0,950 +9,550 +10,050 +8,900 +7,380 +5,400 +0,900 +2,400 +3,900 +5,400 13 500 -0,100 +5,800 +7,520 +0,900 +3,900 +5,400 +2,400 +9,545 +8,000 +2,400 +3,890 -0,950 +7,380 +10,050 14 400 Изм. Кол.уч. Лист №Док. Подп. Дата ГИП Разраб. Жилой дом Фасад 7-1. Фасад Ж-А. Стадия Лист Листов П 4 1 7 А Ж Фасад Ж-А. Фасад 7-1.
  5. 2 300 1 350 2 350 3 000 3 500

    1 000 13 500 1 400 2 225 2 775 2 650 2 350 3 000 14 400 500 4 700 300 625 800 3 275 500 500 3 850 1 400 1 275 1 400 625 300 300 900 800 800 550 500 400 800 200 1400 250 1 200 250 2100 1400 500 1 650 1 400 1 650 300 500 500 1 000 1 200 1 000 300 2 700 300 2 450 900 600 800 950 500 500 2 700 500 900 2 350 250 1 250 150 800 3 200 300 250 1 400 1 650 800 1 400 800 2 400 1 400 2 700 2 000 800 650 2 000 150 2 550 300 2 425 150 2 125 3 200 300 2 700 300 2 125 150 3 425 3 475 150 2 075 5 400 150 3 000 300 3 350 1 000 1 400 2 300 75 150 75 75 150 75 300 300 2 200 500 380 600 750 860 300 300 400 50 100 100 50 +2,800 +2,400 500 2 000 300 1 600 2 600 2 600 1 600 500 300 2800 400 2000 1 925 2 250 1 825 1 1 2 2 Каркасные перегородки Ж/б ригель №1 3ø16 А400 3ø12 А400 Опорные кирпичные столбы под обвязку террасы 250х250мм 2ø12 А400 4ø8 А400 шаг 400мм Опорные кирпичные столбы под перекрытие балкона 250х250мм 7 4 3 2 1 А Б Г Е Ж 5 В 6 Д План первого этажа Изм. Кол.уч. Лист №Док. Подп. Дата ГИП Разраб. Жилой дом План первого этажа. Стадия Лист Листов П 5 Примечание: 1.За отметку 0,000 принята отметка чистого пола 1 этажа. 2. Наружные стены жилого дома толщиной 500 мм выполнить из газосиликатных (автоклавных) блоков размером 600х250х300 плотностью 500 кг/м3 с утеплением ROCKWOOL FACADE BATTS толщиной 50мм и облицовочным кирпичем ,внутренние несущие стены выполнить из газосиликатных (автоклавных) блоков 600х250х300 плотностью 500 кг/м3 по ГОСТ 21520-89. 3.Кладку блочных стен вести на клею. По высоте через каждые три ряда выполнить армирование (см. узел А). Декоративная отделка и утепление стен условно не показано. Конструктивные особенности уточнить отдельным проектом. 4. Над оконными и дверными проемами заложить монолитные перемычки( см. узел А). Перемычки выпустить за пределы оконных и дверных проемов на 250 мм с каждой стороны, допускается использовать в качестве перемычек уголок L 100х100х8 мм( см. узел Б). 5. На отм.+2,600 и +5,600 выполнить монолитный пояс, армированный арматурой Ǿ12 А400 . 6.Площади помещений посчитаны без учета отделочного слоя. Экспликация помещений Номер поме- щения Наименование Площадь м. кв. Кат. поме ще ний 1 2 Крыльцо 8,4 6,85 3 4,25 4 Холл 25,93 5 5,29 6 Тамбур Кладовка 7 15,04 28,08 Кабинет Гостиная Гардеробная Схема армирования кладки А Арм. А400 Ǿ8 мм А400 Ǿ12мм А400 Ǿ8мм Арм. А400 Ǿ8 мм Схема армирования кладки Б 8 14,1 Кухня 9 8,09 Санузел 6,90 Топочная 10 24,72 Терраса 11 Схема армирования ж/б ригеля №1 Схема опирания ж/б ригеля №1 на стены 11 7 8 10 9 5 2 3 4 6 1
  6. 2 300 1 350 2 350 3 000 3 500

    1 000 13 500 1 400 2 225 2 775 2 650 2 350 1 925 13 325 500 1 750 1 200 1 750 300 625 800 1 475 800 1 000 500 500 4 420 1 400 1 205 900 625 300 2 000 800 550 500 2 600 2 600 400 800 200 250 1 200 250 200 800 400 500 1 650 1 400 1 650 300 500 500 1 000 1 200 1 000 300 2 700 300 500 550 1 600 550 500 300 800 250 700 150 800 800 250 1 800 2 900 800 250 250 800 3 650 4 700 300 2 425 150 2 125 2 100 300 1 800 150 2 750 4 700 300 4 700 3 200 300 2 700 300 5 700 150 2 075 3 350 150 5 050 300 3 350 640 600 750 860 300 950 900 600 800 2 450 500 4 600 3 650 300 400 50 100 100 50 +5,400 +5,800 800 2 700 600 300 1 800 500 800 2700 600 300 1800 600 Каркасные перегородки 3ø16 А400 3ø12 А400 2ø12 А400 4ø8 А400 шаг 400мм Ж/б ригель №2 Ж/б ригель №3 7 4 3 2 1 А Б Г Е Ж/1 5 В 6 Д План второго этажа Изм. Кол.уч. Лист №Док. Подп. Дата ГИП Разраб. Жилой дом План второго этажа. Стадия Лист Листов П 6 Экспликация помещений Номер поме- щения Наименование Площадь м. кв. Кат. поме ще ний 1 2 Спальня 1 26,79 15,04 3 18,34 4 Спальня 4 13,89 5 18,84 6 Спальня 2 Спальня 3 7 4,98 6,90 С/у 1 С/у 2 Холл 8 8,83 Балкон Примечание: 1.За отметку 0,000 принята отметка чистого пола 1 этажа. 2. Наружные стены жилого дома толщиной 500 мм выполнить из газосиликатных (автоклавных) блоков размером 600х250х300 плотностью 500 кг/м3 с утеплением ROCKWOOL FACADE BATTS толщиной 50мм и облицовочным кирпичем ,внутренние несущие стены выполнить из газосиликатных (автоклавных) блоков 600х250х300 плотностью 500 кг/м3 по ГОСТ 21520-89. 3.Кладку блочных стен вести на клею. По высоте через каждые три ряда выполнить армирование (см. узел А). Декоративная отделка и утепление стен условно не показано. Конструктивные особенности уточнить отдельным проектом. 4. Над оконными и дверными проемами заложить монолитные перемычки( см. узел А). Перемычки выпустить за пределы оконных и дверных проемов на 250 мм с каждой стороны, допускается использовать в качестве перемычек уголок L 100х100х8 мм( см. узел Б). 5. На отм.+2,600 и +5,600 выполнить монолитный пояс, армированный арматурой Ǿ12 А400 . 6.Площади помещений посчитаны без учета отделочного слоя. Схема армирования ж/б ригеля №2 и №3 Схема опирания ж/б ригеля №2 на стены Схема опирания ж/б ригеля №3 на стены 1 6 7 4 3 2 5 8
  7. 1 400 2 225 2 775 2 650 2 350

    3 000 14 400 1 414 793 2 250 2 800 8 700 2 800 2 250 12 100 9 700 1 400 3 500 5 793 1 414 2 114 1 000 1 000 1 000 1 000 350 175 2 650 175 350 5 650 50 300 300 50 1 050 350 50 2 025 150 150 2 425 200 200 2 300 150 150 2 150 50 350 4 750 350 50 6 150 200 200 4 750 50 350 350 50 4 750 200 200 388 1 414 1 783 1 414 559 5 425 300 2 875 200 200 3 400 50 350 300 3 900 300 3 900 300 2 500 150 150 350 50 3 225 225 175 2 650 175 225 5 725 50 350 5 425 300 2 875 200 200 3 400 50 350 1 000 3 500 3 000 2 350 1 350 2 300 13 500 400 400 300 300 100 400 100 0,000 300 850 650 50 250 600 350 50 Конструкция пола - 100мм Монолитная ж/б плита - 250мм Пленка ПВХ(стыки проклеить 2-м скотчем) Плиты пеноплекс- 50мм ПГС - 400мм Геотекстиль Гидроизоляция - 2 слоя гидроизола Отмостка бетон М200 по сетке 50х50 Плиты пеноплекс 50мм Ø16 А400 Ø 12 А400 Ø 12 А400 Стена из блоков арматурная сетка Ø 14 А400 с ячейкой 200х200 арматурная сетка Ø 12 А400 с ячейкой 200х200 7 4 3 2 1 А Б Г Е Ж 5 В 6 Д План фундамента Изм. Кол.уч. Лист №Док. Подп. Дата ГИП Разраб. Жилой дом План фундамента. Стадия Лист Листов П 7 Разрез фундамента. 2 Примечание: 1. Основанием фундамента могут служить надежные малосжимаемые глинистые или песчаные грунты, обеспечивающие расчетное сопротивление не менее 2кг/см2, прогнозный уровень грунтовых вод на глубине более 2м от поверхности земли на участке. 2.Производство работ по устройству фундаментов и гидроизоляции выполнить в соответсвии со СНиП 3.02.01-87 и СНиП 3.03.04-85. 3.Монолитную плиту выполнить из бетона класса В15 толщиной 250 мм на песчаной подушке толщиной 650мм. Армирование изготовить из арматуры А400 путем образования сетки с ячейкой 200х200мм. Стержни принять диам.14 для верхней сетки, диам.12 для нижней сетки. В плите выполнить отверстия под инженерные коммуникации по месту.
  8. 900 350 2 800 300 2 700 2 100 2

    100 2 400 400 ±0,000 +3,100 2 300 400 1 360 +1,632 300 6 400 5 000 3 000 350 2 800 300 2 700 +3,100 ±0,000 2 400 400 1 360 3 500 3 000 6 000 Конструкция пола - 100мм Монолитная ж/б плита - 250мм Пленка ПВХ(стыки проклеить 2-м скотчем) Плиты пеноплекс- 50мм ПГС - 400мм Геотекстиль Металлочерепица Обрешетка 25х100мм Обрешетка 50х50мм Гидроизоляционная мембрана Стропило Ходовой настил Гидроветроозащита "Изоспан А" Утеплитель Rockwool 250мм Фольгированный пенофол Брусок 30(h)х50 Отделка потолка обвязка террасы 2 бруса 150х150мм фиксировать глухарями Двутавр №20 8 Изм. Кол.уч. Лист №Док. Подп. Дата ГИП Разраб. Разрез 1-1. Разрез 2-2. Стадия Лист Листов П Жилой дом Разрез 1-1 А Г Е Ж Разрез 2-2 7 4 3 2 Чистовой пол Воздушный зазор 40 мм Утеплитель ROCKWOOL 200 мм Влаго-ветрозащитная пленка Черновой пол Влаго-ветрозащитная пленка
  9. 1 700 6 300 625 625 625 625 625 625

    650 625 625 650 575 575 575 550 550 550 550 550 550 375 500 600 600 600 600 600 600 600 550 2 050 650 475 500 500 500 500 500 500 500 500 500 500 500 500 500 500 500 650 600 700 300 4 050 2 300 1 350 2 350 3 000 3 500 1 000 13 500 1 400 2 225 2 775 2 650 2 350 3 000 14 400 Монолитный участок (перекрытие балкона) Балки перекрытия 240х100мм низ на отм. +2,800 МУ Изм. Кол.уч. Лист №Док. Подп. Дата ГИП Разраб. Жилой дом Стадия Лист Листов П 9 7 4 3 2 1 А Б Г Е Ж 5 В 6 Д План перекрытий на отм. +2,800. Примечание: 1 За отметку 0,000 принята отметка чистого пола 1 этажа. 2. Все деревянные элементы перекрытия выполнить из бруса хвойных пород по ГОСТ 8486- 86Е. 3. Все деревянные элементы перекрытия обработать антисептиками и антипиренами. 4. Сечение балок на отм. +2,800- 240х100мм. 5. Монолитный участок выполнить из бетона кл. В 15 толщ.220мм. армирование изготовить из арматуры А400 путем образования каркаса с ячейкой 200х200мм. Стержни принять Ø 12А400. План перекрытий на отм. +2,800. Обвязка террасы 2 бруса 150х150мм (фиксировать глухарями между собой) низ на отм.+2,500
  10. 600 600 600 600 600 600 600 375 375 600

    1050 1050 1400 1400 500 500 500 450 500 500 500 500 500 500 500 550 500 500 500 550 650 600 500 600 600 600 600 600 2 000 600 600 600 400 450 650 600 600 700 700 700 400 400 400 500 550 500 500 500 400 600 600 500 500 600 600 600 600 600 600 600 400 600 600 600 600 600 600 600 500 400 350 600 600 600 500 2 300 1 350 2 350 3 000 3 500 1 000 13 500 1 400 2 225 2 775 2 650 2 350 1 925 13 325 2 050 1 300 3 000 1 800 2 000 2 050 2 050 2 800 2 800 2 050 2 050 2 000 2 050 2 050 2 000 2 050 2 350 2 350 2 050 2 800 2 500 2 800 2 050 1 525 700 650 240 100 100 150 150 200 40 600 600 600 600 600 500 900 2 000 2 000 Балки перекрытия брус 240х100мм низ на отм. +5,800 Нижняя обвязка брус 150х150мм низ на отм. +6,040 Верхняя обвязка балкона брус 150х150мм низ на отм. +5,650 Двутавр №20 Двутавр № 20 Двутавр №20 Брусок 100х40мм Нижняя обвязка брус 150х150мм низ на отм. +6,040 Стойка 150х150мм Балка перекрытия брус 240х100мм низ на отм. +5,800 7 4 3 2 1 А Б Г Е Ж/1 5 В 6 Д Изм. Кол.уч. Лист №Док. Подп. Дата ГИП Разраб. Жилой дом Стадия Лист Листов П 10 Примечание: 1 За отметку 0,000 принята отметка чистого пола 1 этажа. Низ балок перекрытия на отметке +5,800 2. Все деревянные элементы перекрытия выполнить из бруса хвойных пород по ГОСТ 8486- 86Е. 3. Все деревянные элементы перекрытия на отм. +5,800 обработать антисептиками и антипиренами. 4. Сечение балок на отм. +5,800 100х240мм. План перекрытий на отм.+5,800. План перекрытий на отм.+5,800.
  11. 600 600 600 600 600 600 600 600 600 600

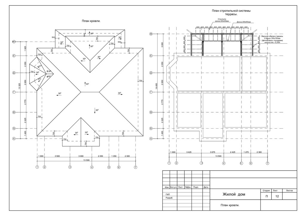
    600 600 600 600 500 550 500 500 500 500 400 600 600 600 600 600 600 600 600 600 600 600 600 600 600 600 600 600 600 600 600 600 600 600 600 500 600 600 600 600 600 600 600 600 600 600 600 600 600 600 600 600 500 500 500 450 500 600 600 600 600 600 600 600 550 500 500 600 600 600 650 250600 600 600 600 600 600 600 650 600 600 600 500 600 2 300 1 350 2 350 3 000 3 500 1 000 13 500 1 400 2 225 2 775 2 650 2 350 1 925 13 325 2 300 1 350 2 350 3 000 3 500 1 000 13 500 1 400 2 225 2 775 2 650 2 350 1 925 13 325 600 600 600 600 500 600 600 Стропило доска 200х50мм Накосная нога 2 доски 200х50мм Подстропильная обвязка брус 150х150мм низ на отм.+7,600 Стойки К1 Коньковый прогон брус 150х150мм низ на отм.+9,150 Коньковый прогон брус 150х150мм низ на отм.+7,150 Коньковый прогон брус 150х150мм низ на отм.+7,000 Коньковый прогон брус 150х150мм низ на отм.+7,600 Верхняя обвязка балкона брус 150х150мм низ на отм.+5,650 7 4 3 2 1 А Б Г Е Ж/1 5 В 6 Д Изм. Кол.уч. Лист №Док. Подп. Дата ГИП Разраб. Жилой дом План стропильной системы. Стадия Лист Листов П 11 К1 К1 К1 К1 К1 К1 К1 К1 К1 К1 К1 К2 К2 К3 К4 К4 К1=1360мм Высота стоек К2=3200мм К3=1110мм К4=810мм К1 7 4 3 2 1 А Б Г Е Ж/1 5 В 6 Д План подстропильных конструкций План стропильной системы 1. Элементы стропильной системы изготавливать из древесины хвойных пород по ГОСТ 8486-86* . 2. Крепление деревянных эллементов производить гвоздями (ГОСТ 4028-63) . При креплении стропилл между собой применяют стальные накладки с двух сторон на стропило. 3. Стропила принять сечением 50х200h мм с шагом не более 600 мм. 4. Все деревянные элементы обработать антисептиками и антипиренами в соответствии с требованиями СНиП 2.03.11- 85 и СНиП 2.01.02-85.
  12. 2 300 1 275 2 425 3 075 3 425

    1 000 13 500 1 400 2 225 2 775 2 650 2 350 3 000 14 400 600 600 600 600 600 600 600 600 600 600 600 600 500 600 600 600 500 600 600 600 500 500 700 500 700 700 700 700 700 700 700 700 700 700 700 700 700 2 300 1 350 2 350 3 000 3 500 1 000 13 500 1 400 2 225 2 775 2 650 2 350 1 925 13 325 Верхняя обвязка террасы 2 бруса 150х150мм (фиксировать глухарями) низ на отм. +2,500 Стропило доска 200х50мм Доска 200х50мм 7 4 3 2 1 А Б Г Е Ж 5 В 6 Д Изм. Кол.уч. Лист №Док. Подп. Дата ГИП Разраб. Жилой дом План кровли. Стадия Лист Листов П 12 План стропильной системы террасы. 300 300 300 300 300 300 300 300 300 300 300 300 270 270 7 4 3 2 1 А Б Г Е Ж/1 5 В 6 Д 300 380 300 План кровли.
  13. Подстропильная обвязка брус 150х150мм низ на отм.+7,600 Коньковый прогон брус

    150х150мм низ на отм.+9,150 Коньковый прогон брус 150х150мм низ на отм.+7,000 Коньковый прогон брус 150х150мм низ на отм.+7,150 Балки перекрытия юрус 240х100мм низ на отм. +5,800 Нижняя обвязка брус 150х150мм низ на отм. +6,040 Подстропильная обвязка брус 150х150мм низ на отм.+7,600 Стойки Стойки Балки перекрытия юрус 240х100мм низ на отм. +5,800 Стропило доска 200х50мм Накосная нога 2 доски 200х50мм Нижняя обвязка брус 150х150мм низ на отм. +6,040 Двутавр №20 Изм. Кол.уч. Лист №Док. Подп. Дата ГИП Разраб. Жилой дом 3D виды стропильной системы. Стадия Лист Листов П 13
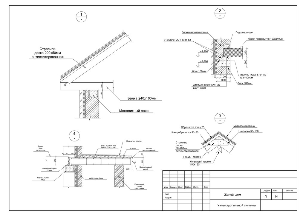
  14. 50 240 Стропило доска 200х50мм антисептированная Балка 240х100мм Монолитный пояс

    1 - 300 200 240 +2,600 +2,800 100 200 140 240 50 70 120 50 130 200 250 225 250 Пенополистирол 50мм А400 диам. 8мм 4хдиам. 12мм А400 диам. 12мм А 400 сетка 200х200мм Стяжка Покрытие- плитка Балка брус 240х100мм Отлив металлический Водоотводный желоб Гидроизоляция Кирпичный столб 250х250мм 14 Изм. Кол.уч. Лист №Док. Подп. Дата ГИП Разраб. Узлы стропильной системы Стадия Лист Листов П Жилой дом Контробрешетка 50х50 Обрешетка толщ.25 Накладка 50х150 Металлочерепица Коньковый прогон 150х150 Стропило доска 50х200мм антисептированная Гвозди К5х150 Ø12А400 ГОСТ 5781-82 балки перекрытия 100х240мм Блоки газосиликатные Ø12А400 ГОСТ 5781-82 шаг 150мм Ø8А400 ГОСТ 5781-82 шаг 400мм 2 - 3 - блок 300мм блок 100мм 4 -
  15. 120 30 50 300 15 Изм. Кол.уч. Лист №Док. Подп.

    Дата ГИП Разраб. Конструкция утепления наружных стен.Теплотехнический расчет. Стадия Лист Листов П Материал толщ., м Теплопрповодность, Вт/м градС Rк, градС/Вт 1 2 0,050 0,035 1,43 Rо = 1/8,7 + 3,09 + 1/23 = 3,25 > 3,16 Конструкция утепления наружных стен Кирпич Жилой дом Утеплитель ROCKWOOL ФАСАД БАТСС 50мм 3,09 Теплотехнический расчет Расчет производим по СНиП 23-02-2003 "Тепловая защита зданий" , СП 23-101-2004 "Проектирование тепловой защиты зданий",СНиП 23-01-99* "Строительная климатология", в программе ТЕРЕМОК. Согласно нормативам определяем требуемое приведенное сопротивление теплопередаче ограждающих конструкции. ГСОП= 5027 град С сут По табл. СНиП 23-02-2003 определяем нормируемое значение сопротивления теплопередаче R-req : для стены R-req = 3,16 м2.С/Вт Rфакт >R-req см. СНиП 23-02-2003. Rфакт =(1/ав)+R+(1/ан), где ав - коэффициент теплоотдачи внутренней поверхности ограждающей конструкции, принимаемый по табл. 4, ан - коэффициент теплоотдачи наружной поверхности ограждающей конструкции, принимаемый по табл.6. ав=8,7 Вт/м2 градС - для стен, полов, гладких потолков, ан = 23 Вт/м2 градС - для наружных стен, покрытий. Стены дома: 1. Утеплитель ROCKWOOL FACADE BATTS,плотностью 145 кг/м3, толщиной 50мм. 2. Газосиликатные блоки размером 600х200х300мм по ГОСТ 21520-89, плотностью 500 кг/м3 толщ 300мм; - + Воздушный зазор 30мм Ветрозащита-супер дифузионная мембрана Ютавек 85 Блоки из ячеистого бетона 600х200х300мм 0,300 0,18 1,66