Upgrade to Pro — share decks privately, control downloads, hide ads and more …

Противопучинные мероприятия сваи СМОТ фундамент

Avatar for Oleg Oleg
December 01, 2018

Противопучинные мероприятия сваи СМОТ фундамент

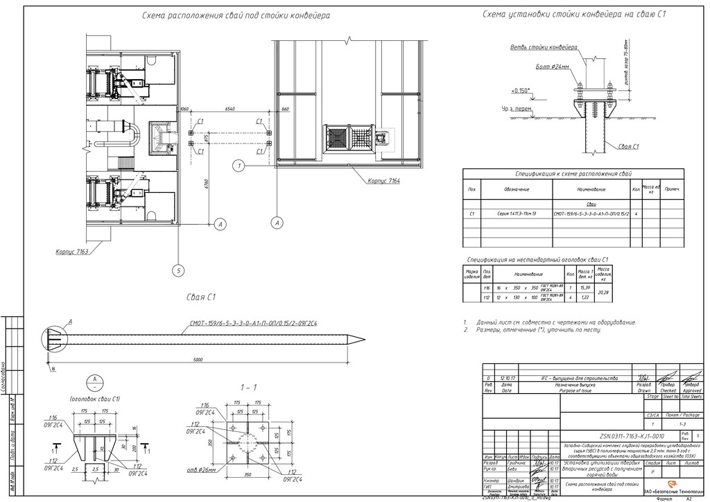
Противопучинная оболочка, противопучинная оболочка ОСПТ «Reline», противопучинные мероприятия, свайные фундаменты, устройство свайных фундаментов, свая СМОТ, Серия 1.411.3-11см.13, СТО 36554501-054-2017, противопучинные технологии, касательные силы морозного пучения, морозное пучение, деятельный слой

Avatar for Oleg

Oleg

December 01, 2018
Tweet

More Decks by Oleg

Other Decks in Technology

Transcript