Upgrade to Pro — share decks privately, control downloads, hide ads and more …

Противопучинистая оболочка

Avatar for Oleg Oleg
December 01, 2018

Противопучинистая оболочка

Противопучинная оболочка, противопучинная оболочка ОСПТ «Reline», противопучинные мероприятия, свайные фундаменты, устройство свайных фундаментов, свая СМОТ, Серия 1.411.3-11см.13, СТО 36554501-054-2017, противопучинные технологии, касательные силы морозного пучения, морозное пучение, деятельный слой

Avatar for Oleg

Oleg

December 01, 2018
Tweet

More Decks by Oleg

Other Decks in Technology

Transcript

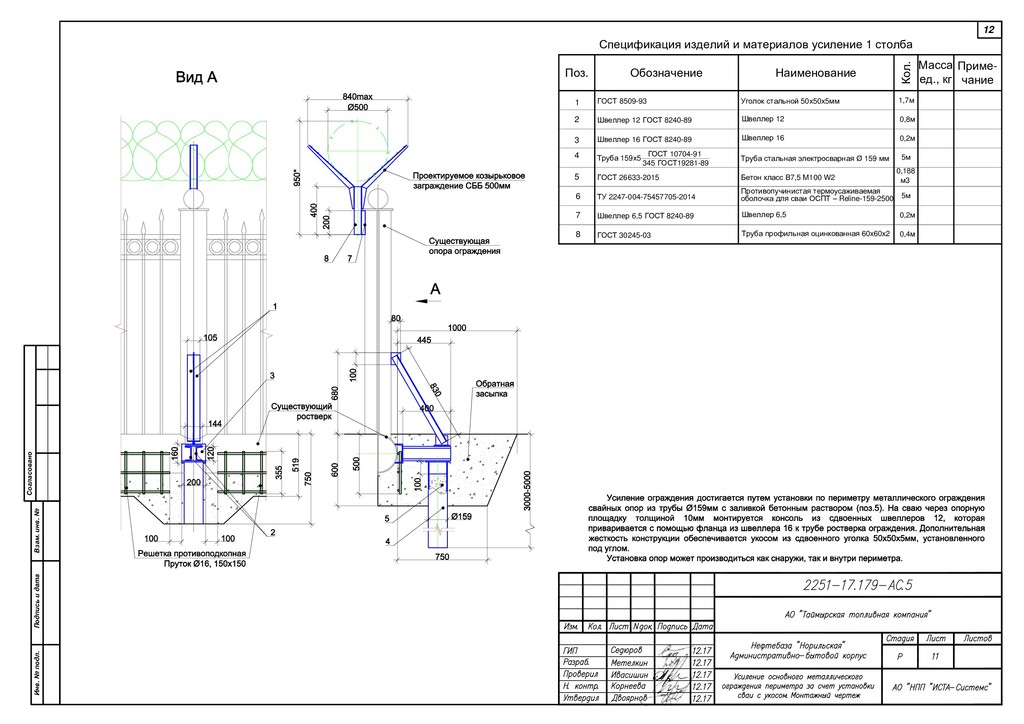
  1. 12 Согласовано Взам. инв. № Подпись и дата Инв. №

    подл. Обозначение Наименование Кол. Приме- чание 1 3 4 5 Поз. Масса ед., кг 2 Уголок стальной 50х50х5мм Швеллер 12 Труба стальная электросварная Ø 159 мм ГОСТ 8509-93 Швеллер 12 ГОСТ 8240-89 Спецификация изделий и материалов усиление 1 столба Швеллер 16 Швеллер 16 ГОСТ 8240-89 Бетон класс B7,5 M100 W2 ГОСТ 26633-2015 6 Противопучинистая термоусаживаемая оболочка для сваи ОСПТ – Reline-159-2500 ТУ 2247-004-75457705-2014 ГОСТ 10704-91 345 ГОСТ19281-89 Труба 159х5 0,188 м3 5м 1,7м 0,2м 0,8м 5м Швеллер 6,5 Швеллер 6,5 ГОСТ 8240-89 7 0,2м 8 Труба профильная оцинкованная 60х60х2 0,4м ГОСТ 30245-03
  2. Ø159* -5,900 -0.750 -0,000 0,100 +3,000 +6,170 8 1 2

    5 15 5 14 Обратная засыпка грунтом 300 750 500 Поперечный разрез траншеи 700 250 250 160 160 Ø16 4 сквозных отв. Фланец 3 2 Ø160 Ø130 200 100 550 650 Установка закладной, расположение отверстия для ввода ПНД труб 250 1. * Размер для справок. 2. Заготовить отрезок трубы Ø159мм длиной 6м. 3. Изготовить фланец, размерами 250х250мм с центральным отв. Ø160мм и 4-мя отв. Ø16мм согласно чертежа из листа поз. 3 и приварить его к трубе, заготовленной по п.2. на расстоянии 550мм от фланца прорезать в трубе прямоугольное отв. 100х200 как показано на чертеже. Наружные части полученной сваи покрыть мастикой резинобитумной. 4. Отрыть траншею, размерами 0,75х0,3м от ограждения до места установки опоры. 5. В отрытой траншее разметить и пробурить скважину Ø160мм. Опустить сваю в скважину вдавливанием, проверяя вертикальность через каждые 0,5м. Произвести прокладку ПНД труб через траншею и фундамент. Выход труб над поверхностью земли 1..1,5 м 6. После установки сваи залить во внутренний объем сваи бетон класс B7,5 M100 W2 через отв. во фланце. Произвести обратную засыпку траншеи. 7. Смонтировать опору на фланце болтовым соединением 8. Организовать заземление опоры к ближайшему очагу заземления согласно чертежа. Согласовано Взам. инв. № Подпись и дата Инв. № подл. 1:5 1 1 3 2 Обозначение Поз. Примечание Наименование Кол. Опора граненая коническая, 6м Бетон класс B7,5 M100 W2 ГОСТ 26633-2015 0,188 4 5 ОГК-6 (250,160) 6 7 8 9 10 11 2кг Мастика битумно-резиновая МБР-65 2 Кабельный наконечник 6-6-4 5м Провод заземления ПУгВ 1х6 1 1 1 Труба ПНД Ø50мм тип Т ** 5м Металлорукав в ПВХ изоляции 13 9 10 11 заземлитель 7 (1:4) 8 А А Гайка М6 DIN 934 Болт М6х20 DIN 933 Шайба 6 DIN 6798 ГОСТ 15836-79 МПГ нг 38 Труба электросварная 159х6мм ГОСТ 10704-91 6м 12 14 15 16 Гайка М12 DIN 934 Болт М12х100 DIN 933 Шайба12 DIN 125 Лист стальной, толшина 20мм Лист ПУ-О-20 ГОСТ19903-74 09Г2С ГОСТ 19281-89 0,062 8 4 8 оболочка для сваи ОСПТ – «Reline» 6м 4 12 13 14 15 17 2 6 16 Спецификация изделий и материалов на установку 1 столба ОГК-6 м2 м3 2 (16) 3 15 17 ** ГОСТ 8736-2014 Песок средней крупности 17 5 5
  3. 1 2 4 +2,070 0,000 2070 6 5(9) 360 140

    7 3 4 Разрез 1-1 -0,500 Крепление скоб (1:4) Б Последующие Верхняя 60* Б Б-Б 1 (2) 60* 60* 3 4 6 0,000 -0,500 140 140 1 Разрез 4-4 +2,070** Ось заграждения 1 Разрез 2-2 Ø159 1000** 500** 8 5(9) 0,000 -0,500 -5,000 1 2 3 4 10 1 25 Согласовано Взам. инв. № Подпись и дата Инв. № подл. М 1:20 Ограждение локальной зоны 1 3 5 6 7 8 9 10 11 2 4 Fensys, РФ Fensys, РФ Fensys, РФ Fensys, РФ Панель сварная 2030x3000 пруток Ø8мм ячейка 50х150мм Столб ограждения 80х80х3мм, H=2,07м Заглушка пластиковая для столба Скоба монтажная Труба электросварная Ø159х5мм Профиль стальной 140х140х5мм ГОСТ 26633-2015 Лист стальной, толщина 5мм Бетон класс B7,5 M100 W2 Профиль 140x140x5 ГОСТ 30245-2003 Cт245 ГОСТ 27772-88 ГОСТ 10704-91 Лист 5 ГОСТ 19903-74 345 ГОСТ19281-89 80х120мм Обозначение Наименование Кол. Приме- чание Поз. Масса ед., кг Спецификация изделий и материалов на 6м ограждения Мастика битумно-резиновая изоляционная МБР-65 ГОСТ 15836-79 Цинол Лакокрасочное покрытие Противопучинистая термоусаживаемая оболочка для сваи ОСПТ – «Reline» на 1 сваю на 2 сваи на 2 сваи на 1 сваю ТУ 2247-004-75457705-2014