Upgrade to Pro — share decks privately, control downloads, hide ads and more …

從裝潢設計圖到 Home Assistant:打造智慧家庭的實戰與踩坑筆記

Sponsored · Ship Features Fearlessly Turn features on and off without deploys. Used by thousands of Ruby developers.
Avatar for Kewang Kewang
November 08, 2025

從裝潢設計圖到 Home Assistant:打造智慧家庭的實戰與踩坑筆記

智慧家庭不是裝好設備就結束了,而是從裝潢階段就該開始的長期戰爭,而且會隨著生活習慣不斷演進,沒有停止的一天。

本場分享將從我親身經歷的新家裝潢談起,身為一位資深軟體工程師,如何在有限的時間與施工條件下,活用本業經驗規劃弱電走線、WiFi 訊號模擬、設備協定選型、網路基礎建設,並整合 Home Assistant 與 UniFi 網路管理系統,打造一個能穩定運作、自動回應情境、符合生活節奏的智慧家庭。過程中踩過的坑不勝枚舉,包括:

* Thread 網路不穩,裝置時靈時不靈,只能靠 CLI 查 log 抓鬼
* 不同設備協定難以整合,自動化流程設計也因此變得更加複雜
* 一堆「智障家電」不支援 API,更不用說 Matter 了,要整合只能靠奇招(甚至紅外線模擬)
* 電視牆的網路線被牆體卡死,想重拉必須整個繞天花板

如果你也準備為新家導入智慧家庭,這場分享將告訴你:什麼該先規劃、哪些細節最容易忽略,以及有哪些地方,千萬不要像我一樣踩下去。

Avatar for Kewang

Kewang

November 08, 2025
Tweet

More Decks by Kewang

Other Decks in Technology

Transcript

  1. Kewang • 王慕羣 Kewang • JavaScript / Java • PostgreSQL

    / MongoDB / Elasticsearch / HBase • Git / DevOps • 熱愛開源 Linkedin Linkedin kewangtw kewangtw SlideShare SlideShare kewang kewang Gmail Gmail cpckewang cpckewang Facebook Facebook Kewang 的資訊進化論 Kewang 的資訊進化論 devopsday taipei devopsday taipei '17 '17 hadoopcon hadoopcon '14 '15 '14 '15 jcconf jcconf '16 '17 '18 '16 '17 '18 GitHub GitHub kewang kewang Funliday Funliday kewang kewang modernweb modernweb '18 '19 '20 '21 '18 '19 '20 '21 coscup coscup '20 '21 '20 '21 mopcon mopcon '14 '20 '22 '24 '14 '20 '22 '24 webconf webconf '23 '24 '23 '24
  2. 4

  3. 7

  4. 10

  5. 11

  6. 12

  7. 13

  8. 14 有這些裝置 名稱 連線方式 Local 或 Cloud 窗簾 Thread Local

    智慧開關 Thread Local 除濕機開關 WiFi Cloud 智慧插座 ZigBee Local 電視 WiFi Cloud 冷氣 WiFi Cloud 電風扇 紅外線 Local 洗脫烘 WiFi Cloud
  9. 15 有這些裝置 名稱 連線方式 Local 或 Cloud 窗簾 Thread Local

    智慧開關 Thread Local 除濕機開關 WiFi Cloud 智慧插座 ZigBee Local 電視 WiFi Cloud 冷氣 WiFi Cloud 電風扇 紅外線 Local 洗脫烘 WiFi Cloud
  10. 20

  11. 21 連線方式 連線方式 Thread WiFi ZigBee Bluetooth 紅外線 連線架構 Mesh

    Point-to-AP Mesh Point-to-Point 單向 功耗 低 高 低 低 低 本機控制 可 不一定 可 可 可 雲端依賴 低 高 低 低 無 範圍延伸性 高 中 高 低 低 穿透能力 中 中 中 中 低 相容性 較新 普遍 廠商依賴 普遍 傳統家電 需要 router 是 否 是 否 否
  12. 22 連線方式 連線方式 Thread WiFi ZigBee Bluetooth 紅外線 連線架構 Mesh

    Point-to-AP Mesh Point-to-Point 單向 功耗 低 高 低 低 低 本機控制 可 不一定 可 可 可 雲端依賴 低 高 低 低 無 範圍延伸性 高 中 高 低 低 穿透能力 中 中 中 中 低 相容性 較新 普遍 廠商依賴 普遍 傳統家電 需要 router 是 否 是 否 否
  13. 24

  14. 25

  15. 27

  16. 28

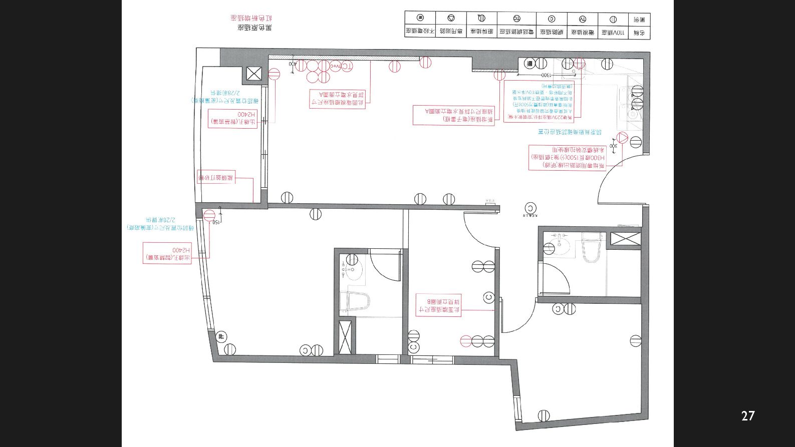
  17. 29 網路 - 有線網路 • 每個空間至少都要有 1 個資訊插座 • 客廳建議留

    2 個資訊插座 • 機上盒 ( 如中華電信 ) 配置方式要事先確認好 • 連到資訊插座的網路線至少要 CAT6 ( 理論值 10GbE) • 電視的網路晶片有時候只支援到 100Mbps • 新建案的弱電箱通常只裝 100Mbps 的 switch
  18. 33 網路 - 無線網路 • 先用 UniFi Design Center 模擬訊號覆蓋範圍

    • 弱電箱要有一台 PoE switch • 正中央天花板一台 PoE AP 達到最大覆蓋範圍 • 無線訊號過一面牆就會衰減許多 • 入住後使用 WiFiman 取得真實覆蓋範圍 • 如果要求全室 5G 甚至 6G ,善用 PoE in-wall 設備
  19. 34

  20. 36

  21. 38

  22. 41

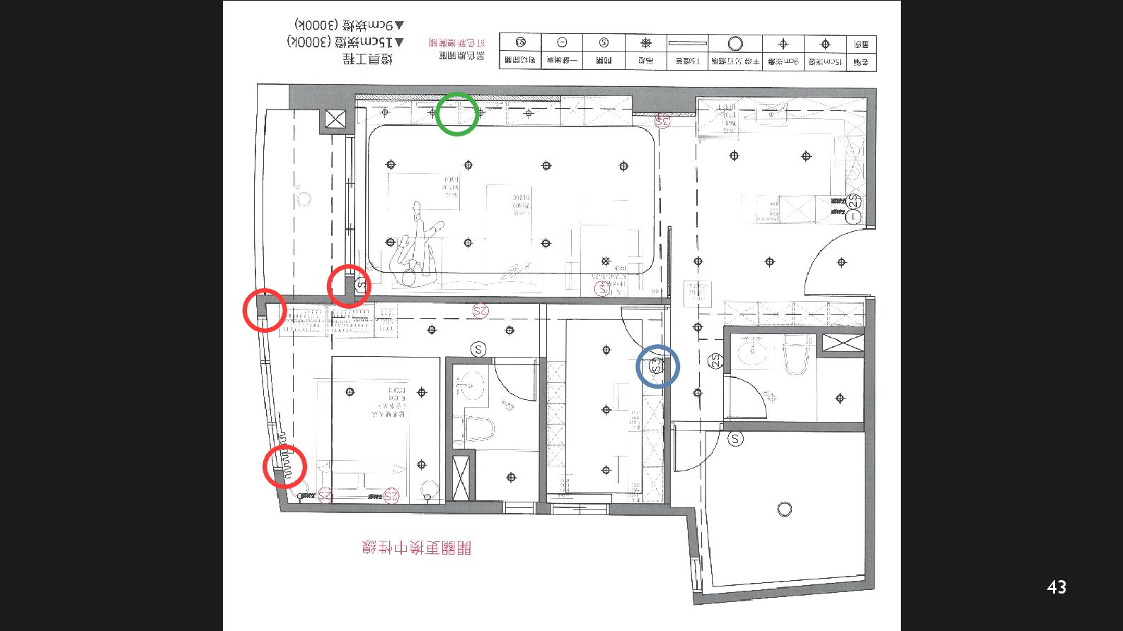
  23. 43

  24. 44 加強 Thread 訊號 • 智慧音箱都可做為 Thread router • 安裝智慧開關做為

    FTD (Full thread device) 使用 • 裝潢時開關一定要加中性線!
  25. 46

  26. 48 自動化 • 當日出的時候,客廳窗簾收起來 • 當工作日早上 6 點的時候,開啟蜂巢簾 • 當我們都不在家的時候,關書房電燈

    • 掃拖機器人開始工作時,把紗簾關起來 • 當主臥變熱,拉蜂巢簾 • 當有人回到家,紗簾收起來打開風扇 • 當相對濕度高於 70% 超過 2 小時,開啟除濕機 1 小時 • 晚上 11 點關所有窗簾
  27. 49 自動化 • 當日出的時候,客廳窗簾收起來 • 當工作日早上 6 點的時候,開啟蜂巢簾 • 當我們都不在家的時候,關書房電燈

    • 掃拖機器人開始工作時,把紗簾關起來 • 當主臥變熱,拉蜂巢簾 • 當有人回到家,紗簾收起來打開風扇 • 當相對濕度高於 70% 超過 2 小時,開啟除濕機 1 小時 • 晚上 11 點關所有窗簾
  28. 50

  29. 52

  30. 53

  31. 54 目前遇到的困擾 • 為了 Thread 窗簾,想要以 Thread 為主 – 但

    Thread 智慧開關還不普遍 • 除濕機要用組合技才能操作,比較麻煩 – 自行改裝 ( 需要有一定技術能力 ) – 買有聯網的 ( 花錢最簡單 ) • 無法即時監控用電量 – 台電在新社區已經有裝智慧電錶 – 但通訊模組要等時間來安裝 ( 或申請時間電價 )
  32. 55 番外篇 - NFC 貼紙 ( 還沒實行 ) • 床頭貼「睡覺」

    – 貼一下關燈開冷氣 • 書桌貼「上班」 – 貼一下開電腦螢幕+桌燈 • 除濕機旁貼「開除濕」 – 貼一下自動打開除濕機 1 小時
  33. 56